Wade House re-imagines what a 21st Century new-build in Metroland suburbia would be now, combining sustainable materials, low cost energy efficiency and design led architectural detail, boldly announcing itself as unique whilst settling unobtrusively into the suburban street scene.

This landmark two bedroom detached property with alternating red and black roof tiles nestles at the end of a quiet suburban street, minutes’ walk from the local underground and bus routes into Central London.
Larch wood fencing and double gates form the garden boundary whilst a bespoke metal garden gate leads the way to a hand made Accoya wood three quarter glass front door with stained glass.
This bonded stained glass with a modern twist, nods to the leaded glass from the original 1930s Manor estate, casting shapes onto the warm Kettley red tiles on the entrance hall floor. These tiles flow throughout downstairs, warmed by the underfloor heating adding texture and tone underfoot.

Wade House

Wade House Gate

The hallway benefits from bespoke bench seat and shoe cupboards with further cupboards at head height. There’s a downstairs toilet and basin that has walls lined with Douglas Fir cladding.
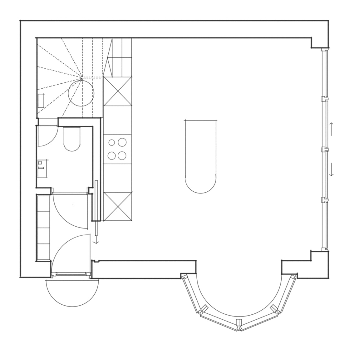
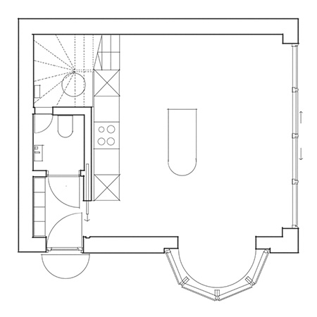
The elevated ceiling with full height white pocket door slides open to reveal the kitchen, living room. One wall is entirely composed of sliding security patio doors, delivering scale and efficiency of light and framing the landscaped garden.


The Douglas Fir handleless kitchen, by Jacobs of London, incorporates Miele appliances with induction hob, oven, dishwasher and fridge freezer, a white Silstone worktop with underhung sink top the work surface combined with multiple storage cupboards.


Large bay window with frameless glass captures the view and soft white plastered patina walls creates a spacious and light feeling.

Wade House Bedroom 2

Wade House Bedroom 2

Wade House Bedroom 2

Wade House Bedroom 2

Wade House Plan
credit: Wadhal

Wade House Plan
credit: Wadhal

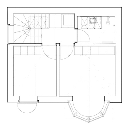
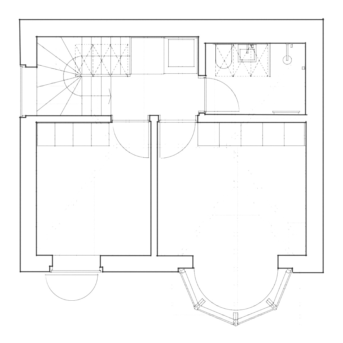
First floor

Silver Fir wooden stairs curve invitingly away, beckoning you onwards, as you round the corner the architecture opens up into a vaulted ceiling with soaring wooden beams creating a palpable sense of calm and serenity.


The large picture window drenches the landing in light alongside two Velux windows set into roof creating individual freeze frames of an ever-changing sky. The architect has utilized the available to space with a small bench seat, storage and built-in laundry area with Miele washer/dryer installed, all bespoke hand made by Jacob Alexander.


Directly ahead lies the bathroom/wet room with three quarter wall lined red/brown Kettley pavers combining with white Lusso Stone sink, toilet and rain shower with extension arm hand and bespoke glass shower screen.


The walls of the landing and bedrooms continue the theme of soft white offset by the warm wood ceiling, the tall white doors are hinged with concealed Tectus hinges and framed by shadow gaps. The rooms are subtly lit by the warm tungsten hues of the lights in the rafters and small tubes and spotlights pointing upwards on the walls continues the sense of warmth and calm at night.


The master double bedroom bay window encapsulates a view of the rear gardens from the road adjacent providing privacy whilst above the angles of the vaulted ceiling embrace a spiritual atheistic.


The second double bedroom has a single picture window with the vaulted ceiling above giving a feeling of light and space.

Wade House Bedroom 2

Wade House Bedroom 2

Wade House Bedroom 2

Wade House Bedroom 2

Energy Efficiency

Wade House’s low running costs reflect its none-traditional build. Whilst appearing to be a brick and cement render structure it cloaks a highly efficient sandwich of insulation and wicking materials allowing the building to retain heat and breath. The house needs only limited heating requirements in winter via its air source pump enabling low cost and low emissions throughout the year. The design of the air flow from the open patio doors to the Velux windows in the roof allows the warm air to be drawn out, cooling it in the summer.


The open patio doors lead onto permeable coloured shingle and plants specifically selected for colour, scent and shape, bordered by a soft lawn allowing you to soak up the sun and laze in the South facing garden.


Gutters and down pipes are concealed within the fabric of the building providing the property with clean, precise lines and reducing maintenance. The plant room contains the beating heart of is easily accessed from the downstairs toilets hidden walk-through panel.

Wade House Bedroom 2

Wade House Bedroom 2

Wade House Bedroom 2

Wade House Bedroom 2

Wade House Bedroom 2

Wade House Bedroom 2

Wade House Bedroom 2

Wade House Bedroom 2

Federation of Master Builders

The property further benefits from a 10 year New Build guarantee from the Federation of Master Builders and is rare opportunity to purchase a detached new build on the original Manor Metroland estate of over 2600 homes where properties are predominantly terraced, end terraced and semi-detached and building opportunities are now strictly controlled.

Motifs

The architect has incorporated two motifs as part of the fabric of the Wade House; a quadrant and semi circle. A few examples are the bespoke garden gate, door canopy and stained glass , the semi circular lawn design and the offset red bricks.

Wade House – the name

Wade House reflects the middle name of the local builder who initially developed the land in the early 90s. The builder’s first association with the area came in 1960 when he and his father built two maisonettes on a corner plot of the same road where his son, a third generation was later born. In the 90s the builder developed another corner plot diagonally opposite with an end terraced house which leads us now to the adjacent new build  ‘Wade House’, completing the family connection with his daughter part of the team who identified and developed this final build. Over 65 years; three generations, three properties; one link.  ‘Wade’.